Bilocale in affitto

Calvizzano, Viale Sandro Pertini
€ 450 / mese
2 locali 2 locali
80 Mq 80 Mq
1 bagno 1 bagno

Bilocale in affitto

Calvizzano, Viale Sandro Pertini

Descrizione annuncio

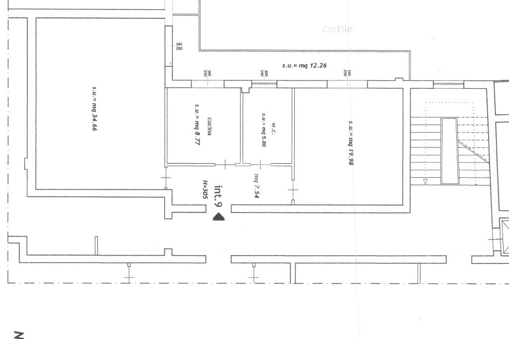
Nel rinomato Parco Ciat, proponiamo in locazione un’appartamento posto al terzo piano con ascensore.

L’immobile è composto da cucina, ampio salone, camera da letto matrimoniale e bagno con vasca e doccia.

Grazie all’ottima distribuzione degli spazi interni, è possibile realizzare un moderno open space cucina-salone e ricavare una cameretta o uno studio nell’attuale cucina, rendendo l’abitazione perfetta per chi necessita di una seconda stanza senza rinunciare alla comodità e alla funzionalità.

Completano la proprietà un posto auto condominiale assegnato il tutto in un contesto tranquillo e riservato, ma al tempo stesso ben collegato e servito.

Soluzione ideale per coppie o giovani famiglie che desiderano personalizzare la propria casa!

Per ulteriori informazioni o per fissare una visita, contattaci subito!

Mostra tutto

Nelle vicinanze

Trasporto pubblico Trasporto pubblico
Via della Resistenza
Via della Resistenza
250 m
Via Palermo
Via Palermo
920 m
Ricariche auto elettriche Ricariche auto elettriche
LIDL Giugliano in Campania
2,8 Km
Scuole Scuole
Scuole
960 m
Scuola Media Massimo D'Azeglio
1,1 Km
Media Vittorio Alfieri
1,4 Km
Istituto statale Dragonetti
2,2 Km
Scuola media statale Luigi Cirino
2,2 Km
Farmacia Farmacia
Farmacia
770 m
Farmacia Comunale Villaricca
1,9 Km
Morrica
2,0 Km
Parafarmacia Moderna
2,6 Km
Farmacia Pezzullo
2,7 Km
Ospedali Ospedali
Azienda Sanitaria Locale Napoli 2 Nord
1,4 Km
Villa dei fiori
1,8 Km
San Giuliano
2,7 Km
Supermercati Supermercati
Issimo
910 m
Carrefour Market
1,4 Km
Decò
1,5 Km
Supermercati
1,7 Km
Conad
1,9 Km
Negozi Negozi
Negozi
1,6 Km
Margaret Sposa Atelier
1,9 Km
Bar Bar
Bar
890 m
Ristoranti Ristoranti
Villa Holiday
1,5 Km
Ristoranti
1,8 Km
Vesy e Mac Rey
2,7 Km
Brothers Pizza
2,7 Km
Mostra tutto

Caratteristiche

Rif.:
61137782
Piano:
3 di 3 con ascensore (Piano alto)
Posti auto:
1
Balconi:
1
Camere da letto:
1
Arredamento:
Assente
Mostra tutto
Prezzo Prezzo
€ 450 / mese
Spese annue Spese annue
€ 420

Classe Energetica

G
G
G
G
G
G
G
G
G
EP globale non rinnovabile:
333.00 kW h/m² anno
EP globale rinnovabile:
333.00 kW h/m² anno
Anno di costruzione:
1988
Riscaldamento:
Autonomo
Tipo impianto:
A radiatori
Tipo alimentazione:
Metano

Ti interessa visionare l'immobile?

Fissa un appuntamento  Fissa un appuntamento

Richiedi informazioni

Clicca su Leggi per aprire l'informativa
* Questi campi sono obbligatori
Affiliato
Maremi Srl
Via Vincenzo Merolla, 80 80016 Marano Di Napoli (NA)

Il nostro staff


  • Renato Pasquale Capuano
    Affiliato

  • Alessandro Baccante
    Responsabile

  • Ferdinando Cocciolito
    Collaboratore

  • Valentina Addante
    Affiliata

  • Luigi Giffoni
    Collaboratore

  • Martina Sarracino
    Coordinatrice
Via Vincenzo Merolla, 80 80016 Marano Di Napoli (NA)
Zona: Marano Centro - Calvizzano
Mostra su mappa
Orari: 9:00-13:00 15:30-20:00 lunedi al venerdi -9:00-13:00 15:30-18:00 sabato
Affiliato
Maremi Srl
Via Vincenzo Merolla, 80 80016 Marano Di Napoli (NA)

2026 Tecnocasa Franchising S.p.A. - P. IVA 08365160152 - Via Monte Bianco 60/A 20089 Rozzano (MI). Ogni agenzia ha un proprio titolare ed è autonoma. Privacy policy | Policy utilizzo | Cookie policy