Trilocale in vendita

Marano Di Napoli, Via Marano Pianura - Città Giardino
€ 105.000
3 locali 3 locali
84 Mq 84 Mq
1 bagno 1 bagno

Trilocale in vendita

Marano Di Napoli, Via Marano Pianura - Città Giardino

Descrizione annuncio

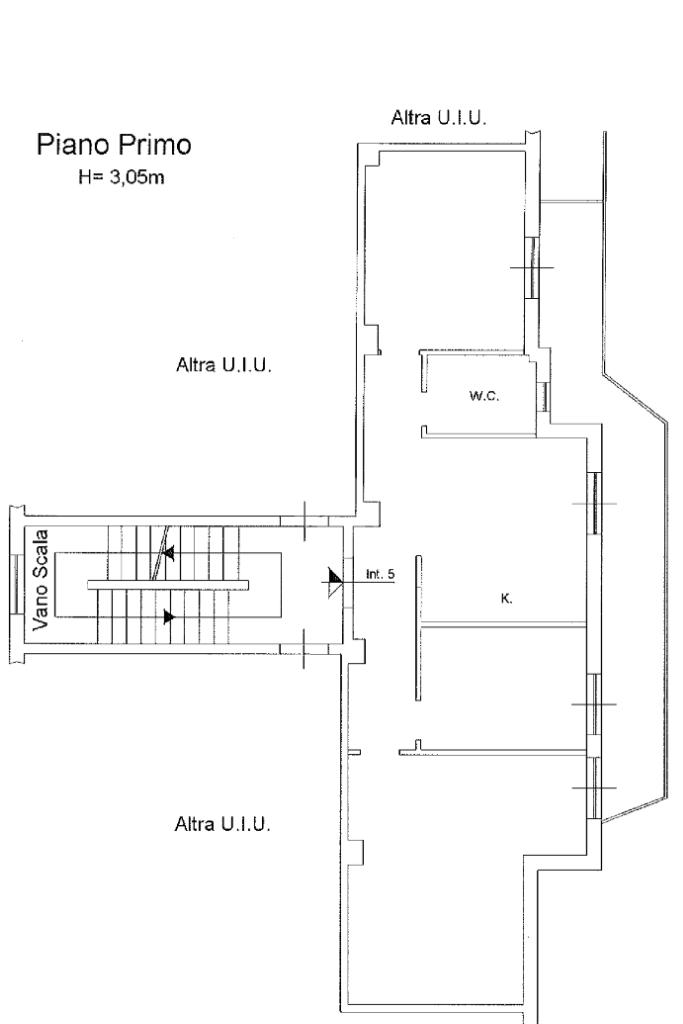
Proponiamo in vendita un accogliente appartamento al primo piano, situato in una zona silenziosa e comoda. L’immobile si compone in: ingresso, cucina con affaccio su balcone, soggiorno luminoso con balcone, cameretta, camera da letto con balcone e bagno finestrato con vasca.

La posizione strategica al primo piano garantisce luminosità e ariosità, mentre tutti i principali servizi di prima necessità sono raggiungibili comodamente a piedi. Una soluzione ideale per chi cerca comfort, praticità e tranquillità.

Mostra tutto

Nelle vicinanze

Trasporto pubblico Trasporto pubblico
Chiaiano
Chiaiano
2,9 Km
Merolla Comune
Merolla Comune
500 m
Corso Umberto 95
Corso Umberto 95
520 m
Scuole Scuole
Media Vittorio Alfieri
820 m
Socrate ( padiglione Paolo Borsellino)
820 m
"Carlo Levi"
1,0 Km
Scuola Media Massimo D'Azeglio
1,0 Km
I.C. "Socrate"
1,1 Km
Farmacia Farmacia
Morrica
1,0 Km
Parafarmacia Moderna
1,3 Km
Farmacia
1,4 Km
Farmacia Chiefalo del Dr G. De Stasio
1,8 Km
Paloschi
2,5 Km
Ospedali Ospedali
Villa dei fiori
2,0 Km
Azienda Sanitaria Locale Napoli 2 Nord
2,7 Km
Supermercati Supermercati
Carrefour Market
750 m
Issimo
1,1 Km
Alimentari Eliseo
2,2 Km
Decò
2,8 Km
Lidl
3,0 Km
Negozi Negozi
Margaret Sposa Atelier
750 m
Negozi
2,5 Km
Bar Bar
Bar
2,8 Km
Ristoranti Ristoranti
Villa Holiday
1,9 Km
Russo
2,3 Km
Vesy e Mac Rey
2,8 Km
Mostra tutto

Caratteristiche

Rif.:
61173797
Piano:
1 di 3 (Piano basso)
Balconi:
1
Camere da letto:
1
Arredamento:
Assente
Condizionamento:
Assente
Mostra tutto
Prezzo Prezzo
€ 105.000
Rata mutuo Rata mutuo
€ 499 / mese
Spese annue Spese annue
€ 360
Proponi il tuo prezzoProponi il tuo prezzo

Classe Energetica

G
G
G
G
G
G
G
G
G
EP globale non rinnovabile:
333.00 kW h/m² anno
EP globale rinnovabile:
333.00 kW h/m² anno
EP invernale del fabbricato:
EP estiva del fabbricato:
Anno di costruzione:
1968
Riscaldamento:
Assente

Ti interessa visionare l'immobile?

Fissa un appuntamento  Fissa un appuntamento

Richiedi informazioni

Clicca su Leggi per aprire l'informativa
* Questi campi sono obbligatori

Calcola il tuo mutuo

Semplice e senza impegno
Anticipo

( % )
Mutuo

( % )

pochi semplici passi

inserisci i tuoi dati
Questionario completato
Grazie per aver richiesto un appuntamento senza impegno con un nostro Consulente del Credito e Assicurativo.

Hai inserito correttamente tutti i dati necessari e a breve riceverai una e-mail con un link da convalidare per inviare i tuoi dati.
Affiliato
Maremi Srl
Via Vincenzo Merolla, 80 80016 Marano Di Napoli (NA)

Il nostro staff


  • Renato Pasquale Capuano
    Affiliato

  • Alessandro Baccante
    Responsabile

  • Ferdinando Cocciolito
    Collaboratore

  • Valentina Addante
    Affiliata

  • Luigi Giffoni
    Collaboratore

  • Martina Sarracino
    Coordinatrice
Via Vincenzo Merolla, 80 80016 Marano Di Napoli (NA)
Zona: Marano Centro - Calvizzano
Mostra su mappa
Orari: 9:00-13:00 15:30-20:00 lunedi al venerdi -9:00-13:00 15:30-18:00 sabato
Affiliato
Maremi Srl
Via Vincenzo Merolla, 80 80016 Marano Di Napoli (NA)

2026 Tecnocasa Franchising S.p.A. - P. IVA 08365160152 - Via Monte Bianco 60/A 20089 Rozzano (MI). Ogni agenzia ha un proprio titolare ed è autonoma. Privacy policy | Policy utilizzo | Cookie policy